Referencie - 2011 - Detail stavby
Malopodlažná zástavba obytného územia Rusovce, Bytové domy B1, B2, B3
Základné údaje o stavbe
| Autori: | Ing. Arch. Klement Trizuljak |
| Generálny projektant: | Ing. Arch. Klement Trizuljak |
| Projektant statiky: | Ing. Miroslav Dobrucký statika.sk s.r.o. |
| Dokumentácia statiky: | Dokumentácia zahŕňala 42 výkresov statického riešenia troch objektov SO36, SO37, SO38. |
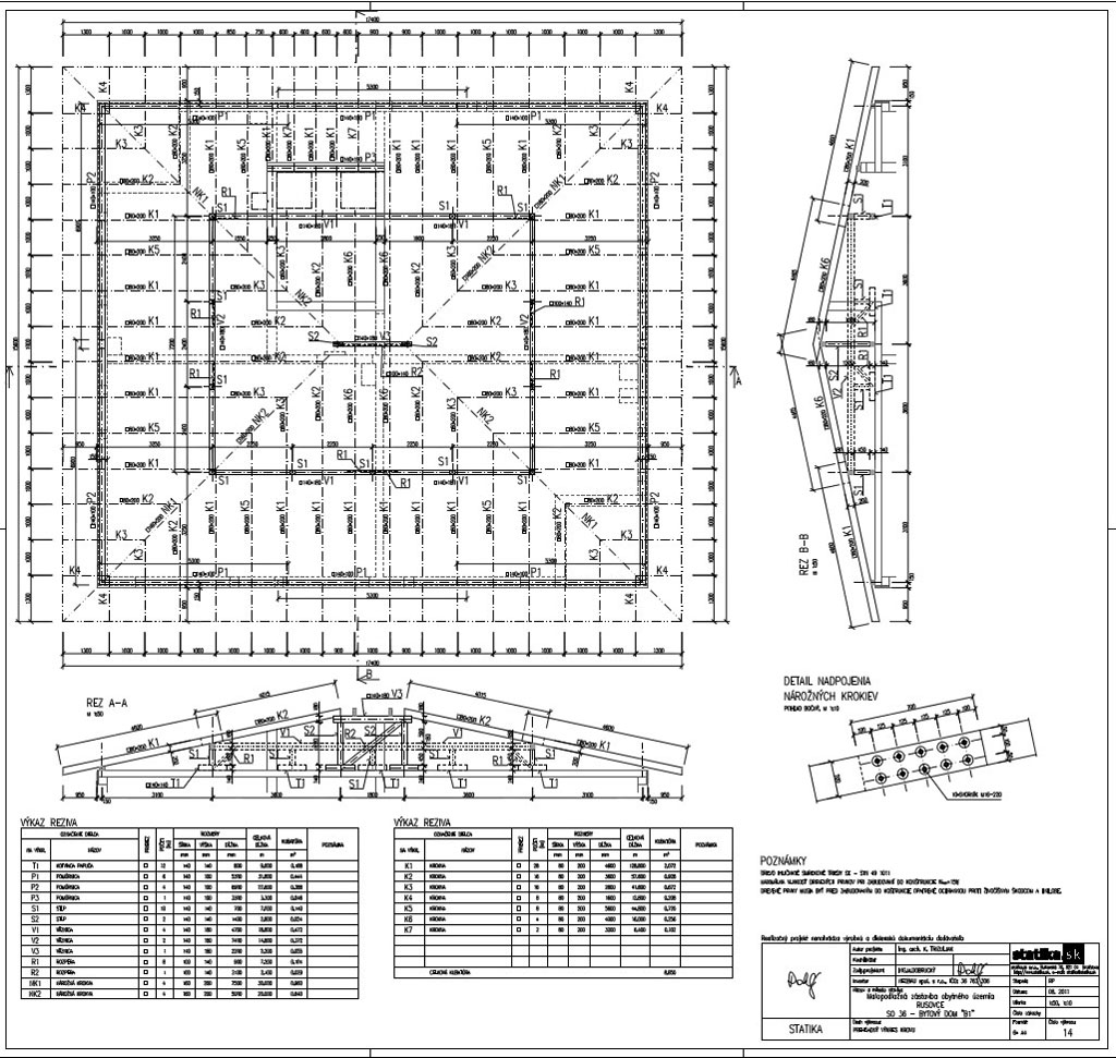
Predmetom projektu je návrh novostavby trojice bytových domov domu s označením „B1“ (stavebné objekty SO36, SO37, SO38) v malopodlažnej zástavbe obytného územia Bratislavskej mestskej časti Rusovce – časť Gaštanova Alej. Novostavba bytového domu je navrhnutá ako dvojpodlažný objekt so suterénom pre parkovanie vozidiel a technické vybavenie objektu. Na 1.NP sa nachádzajú tri dvojizbové byty, na 2.NP sú dva trojizbové byty. Zastrešenie tvorí valbová strecha. Objekt rozmerov vpísaných do obdĺžnika 15,50 × 13,65 sa navrhuje ako samostatný dilatačný celok.
NOSNÉ KONŠTRUKCIE OBJEKTU
Nosné konštrukcie objektu sa navrhujú kombinované z tyčových a plošných prvkov.Základy
Zakladanie objektu sa navrhuje plošné, monolitické na pásoch z prostého betónu a železobetónu. Pod nosnými stenami suterénu sa navrhujú základy z prostého betónu. Pod dvojicou stĺpov S01 v interiéri sa navrhuje základový pás zo železobetónu. Takisto aj pod vjazdom do suterénu svetlosti 4,3 metra.Vodorovné nosné konštrukcie
Vodorovné nosné konštrukcie sa navrhujú doskové, monolitické, železobetónové, pôsobiace ako viacpoľové spojité dosky. Trieda betónu sa navrhuje C25/30, oceľ betonárska akosti 10 505 (R). Dosky okrem prenosu zvislého zaťaženia zabezpečujú dosky svojou vodorovnou tuhosťou aj prenos vodorovného zaťaženia do stužujúcih stien objektu. Dosky sa navrhujú jednotne hrúbky 180 mm. Zásypy okolo objektu je možné zrealizovať až po zabetónovaní stropnej dosky nad suterénom a dosiahnutí požadovanej pevnosti betónu.Zvislé nosné konštrukcie
Zvislé nosné konštrukcie objektu tvoria steny a stĺpy. V interiéri objektu sa navrhujú železobetónové nosné stĺpy prierezu 250×350. Po obvode objektu sa navrhujú nosné steny. V suterénne sa navrhujú železobetónové steny hrúbky 200 mm s ohľadom na zachytenie zemného tlaku priľahlej zeminy okolo objektu. V nadzemných podlažiach sa navrhujú murované obvodové nosné steny hrúbky 300 mm a 250 mm. Steny majú okrem funkcie zvislého prenosu zaťaženia aj stužujúce funkcie voči vplyvom horizontálneho zaťaženia na objekt. V NP01 a NP02 sa navrhuje železobetónová stena uložená na stĺpy S01 a S02. Stenu je potrebné nechať podopretú až po dosiahnutí požadovanej pevnosti betónu stropnej dosky nad NP02.Schodisko
V objekte sa navrhujú schodisko zo suterénu na 1.poschodie. Navrhuje sa doskové, monolitické železobetónové hrúbky 160 mm.Použité materiály
- Betón základov STN EN 206-1 C30/37 - XC2, XA1 - Cl 0.4 - Dmax 32 mm
- Betón hornej stavby STN EN 206-1 C25/30 - XC1 – Cl 0.4 – Dmax 16 mm
- Podkladný betón – prostý C12/15, hrúbky 100 mm
- Betonárska oceľ 10 505 (R), KARI siete (W)
- Oceľ plochá a valcované tyče S235
- Tehly HELUZ STI hrúbky 300 mm pevnosti 10 MPa
- Tehly HELUZ P15 24 hrúbky 240 mm pevnosti 15 MPa
- murovacia malta pevnosti 10 a 5 MPa
Posledná úprava - 17-Sep-2020 - Ing. Miroslav Dobrucký
Doména beží na webportal.sk. Dnes je: Tuesday - 17-Feb-2026
Návštevnosť - Celková: 310783 - Mesiac Február: 23973 - Denná: 116
Vaša IP adresa je: 216.73.216.19 a celkovo ste u mňa prezreli 76 stránok


